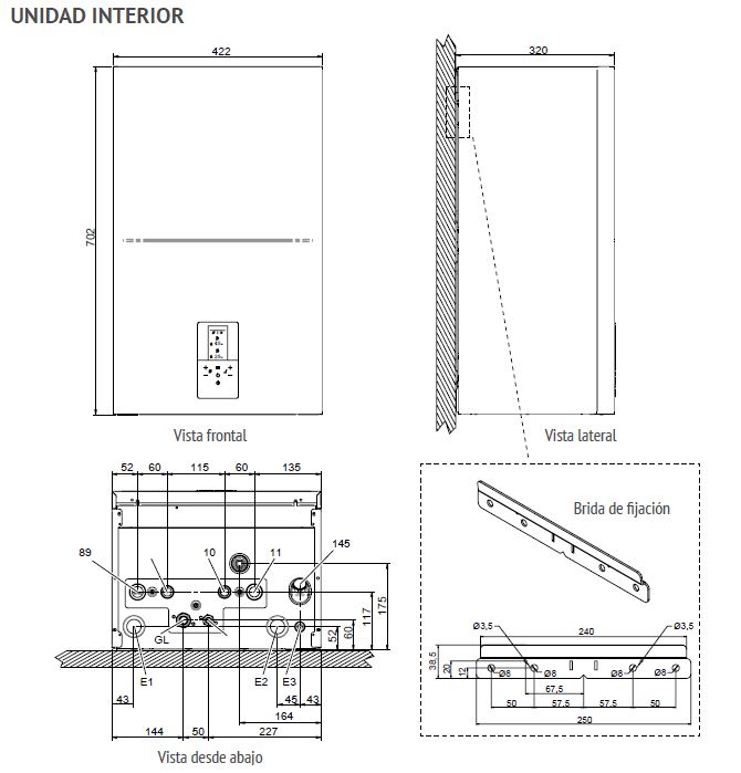
AEROTERMIA OMNIA S 3.2 PARTIDA 4kW FERROLI

    6.410,00 € 3.974,20 € 3974.2000000000003 EUR

    6.410,00 €

    Esta combinación no existe.

    Agregar al carrito

    AEROTERMIA OMNIA S 3.2 PARTIDA 4kW FERROLI
    - Potencia calorífica 4,2kW
    - Potencia frigorífica: 4,7kW
    - SCOP 35ºC: 4,85
    - SCOP 55ºC: 3,31
    - RUIDO: 56dB
    - TIPO DE COMPRESOR: Twin Rotary DC


    - Descargar ficha técnica: